โครงสร้างบ้านรูปทรงสี่เหลี่ยมคางหมูหลายองศา พร้อมกับหลังคาเฉียงที่เฉือนมุมมอง ล้อมรอบไปด้วยต้นไม้น้อยใหญ่กว่าสิบต้นแผ่ปกคลุมให้ความร่มรื่นกับพื้นที่บริเวณโดยรอบ ทั้งนี้ยังสามารถทอดสายตามองเห็นวิวของริมแม่น้ำปิง เป็นที่ตั้งของ ‘บ้านริมคลอง‘ ออกแบบโดย EKAR Architects บริษัทออกแบบงานสถาปัตยกรรมที่ได้ชื่อว่า Young Blood Architects หรือสถาปนิกกลุ่มเลือดใหม่

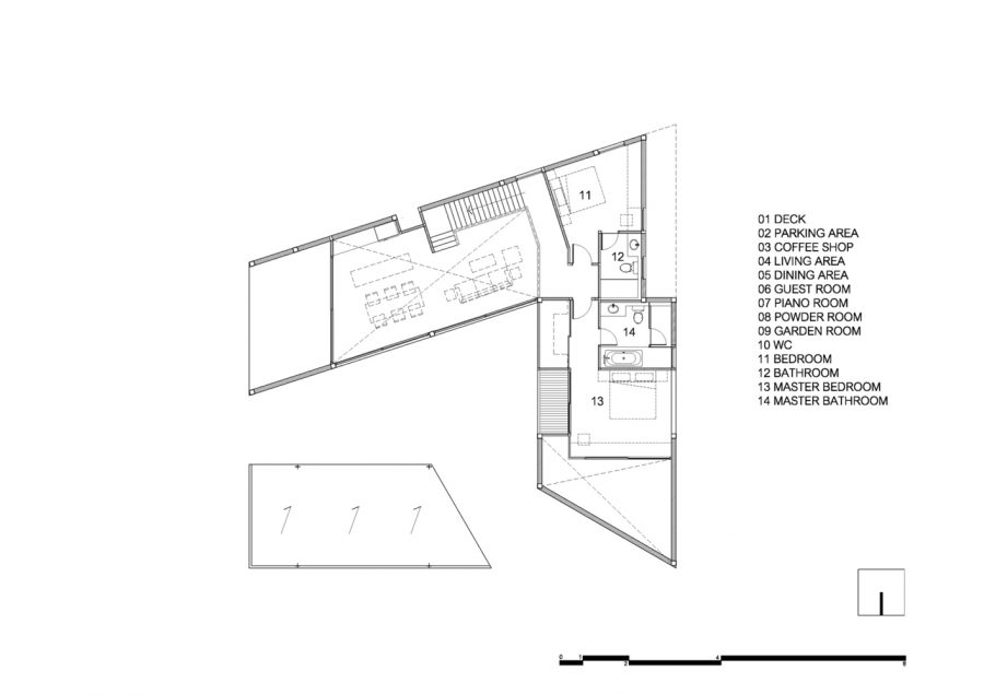
‘บ้านริมคลอง‘ บ้านที่ต้องการออกแบบให้เป็นร้านกาแฟและโรงเรียนสอนดนตรี ท่ามกลางบรรยากาศที่โอบล้อมไปด้วยต้นไม้นานาพันธุ์ ติดกับ แม่น้ำคาว คลองที่ย่อยออกมาจากแม่น้ำปิง แม่น้ำสายหลักของเชียงใหม่


การออกแบบนั้นได้รับแรงบันดาลใจมาจาก บ้านริมคลองโบราณ อันเป็นชุมชนดั้งเดิมตามลำคลองในประเทศไทย จึงได้ดีไซน์หลังคาของบ้านออกแบบให้มีความชัน 32 องศา เพื่อให้มีความแปลกใหม่และช่วยป้องกันความร้อนและระบายน้ำฝนได้ดี นอกจากนี้ยังช่วยหมุนเวียนอากาศได้ทั่วบ้าน และทางสถาปนิกยังได้แบ่งพื้นที่ของบ้านออกเป็น 2 ส่วน โดยมีสนามหญ้าเป็นตัวแบ่งพื้นที่ของบ้านทั้งสองหลัง




ตัวบ้านทั้งสองหลังได้ถูกดีไซน์โดยใช้วัสดุหลักที่แตกต่างกัน โดยส่วนที่เป็นตัวบ้านใช้เป็น คอนกรีต สีขาวเน้นรูปทรงที่เรียบง่ายและมีความโมเดิร์น ส่วนบ้านหลังด้านหน้าเป็นที่ตั้งของร้านกาแฟซึ่งสร้างแยกออกมาจากตัวบ้านตั้งห่างจากริมแม่น้ำคาว เลือกใช้ ไม้ เป็นวัสดุหลัก ไล่ระดับสีจากอ่อนไปเข้ม เพื่อสร้างความเท่และเข้ากันได้ดีกับความแข็งแกร่งของตัวบ้านที่ใช้คอนกรีตเป็นรูปทรงสี่เหลี่ยมคางหมู สร้างเอกลักษณ์การออกแบบที่ไม่ซ้ำใคร


ภายในบ้านเลือกใช้วัสดุปูพื้นเป็น กระเบื้อง ซึ่งกำลังนิยมสูงในการตกแต่งบ้าน เนื่องจากลวดลายเฉพาะและความทนทานและการทำความสะอาดได้ง่าย ส่วนวงกบภายในบ้านเลือกใช้เป็นอะลูมิเนียมสีดำเพื่อเพิ่มความโมเดิร์นให้กับบ้าน นอกจากนี้บ้านทั้งสองยังเลือกใช้ เฟอร์นิเจอร์ไม้เก่า ในการตกแต่งบ้านเพื่อช่วยทำให้บ้านดูน่าอยู่ขึ้น และยังสร้างบรรยากาศให้บ้านดูอบอุ่นและคลาสสิกให้กับบ้าน






การออกแบบบ้านริมน้ำ ถือได้ว่าเป็นสถานที่เป็นมากกว่าบ้าน เนื่องจากสามารถเป็นสถานที่พักผ่อนหย่อนใจด้วยการชมวิวสระน้ำ ทั้งนี้เมื่อเราได้มองสายตาไปยังจุดหมายไกล ๆ จะทำให้เรารู้สึกผ่อนคลาย เนื่องจากมีบรรยากาศดี ลมพัดเย็นสบาย
Source
https://archello.com/project/baan-rim-kao-mae-kao-canal-house
https://www.archdaily.com/780682/mae-kao-canal-house-ekar-and-full-scale-studio




























