NJ Villa เป็นบ้านพักส่วนตัวของสามีภรรยาคู่หนึ่ง ชื่อของวิลล่าแห่งนี้ถูกตั้งขึ้นเพื่อให้สอดคล้องกับไลฟ์สไตล์ส่วนตัวของพวกเขา รวมทั้งยังใช้สื่อถึงบุคลิกและความเป็นตัวตนของเขาทั้ง 2 ด้วยเช่นกัน
บ้านหลังนี้ตั้งอยู่ในกรุงเทพฯ บนพื้นที่ขนาด 100 ตารางวา (400 ตร.ม.) ถูกห้อมล้อมด้วยบ้านเดี่ยวหลายหลัง ซึ่งหันหน้าไปทางทิศใต้ทั้งหมด ซึ่งนับเป็นความท้าทายในการออกแบบของสถาปนิก ในการออกแบบบ้านให้ออกมากลมกลืนกับบริบทโดยรอบ
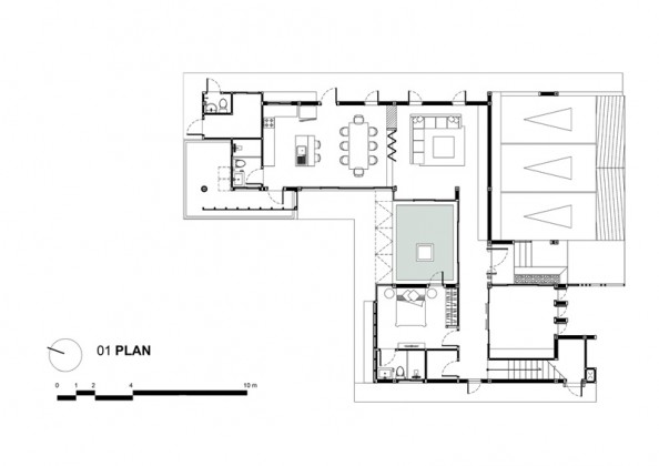
เนื่องจากพื้นที่สีเขียวในกรุงเทพฯ นั้นมีไม่มาก การออกแบบที่อยู่อาศัยให้ใกล้ชิดธรรมชาติมากที่สุดนั้น จึงเป็นส่วนสำคัญ แทนที่จะออกแบบให้สวนอยู่หน้าบ้าน กลับเปลี่ยนตำแหน่งของสวนให้เข้าไปอยู่ด้านใน สร้างให้บ้านอยู่ในรูปแบบคล้ายกับตัว U โอบล้อมสนามหญ้าภายในให้มีความเป็นส่วนตัวมากยิ่งขึ้น โดยสนามหญ้าภายในบ้านเป็นพื้นที่สำหรับทำกิจกรรมได้หลากหลาย โดยผู้ออกแบบเน้นไปที่กิจกรรมซึ่งต้องใช้ประสาทสัมผัส เพื่อให้ประสาทสัมผัสทั้ง 5 ทำงานไปพร้อม ๆ กัน อย่างกิจกรรมที่ช่วยให้มองเห็นและใกล้ชิดกับธรรมชาติ ได้ยินเสียงของน้ำตก และได้สัมผัสถึงความสวยงามของธรรมชาติ นอกจากนี้ ในส่วนของสวนหลังบ้าน จะเชื่อมต่อกับบ่อเลี้ยงปลาซึ่งตั้งอยู่บริเวณกลางบ้าน โดยสามารถมองเห็นได้พื้นที่บริเวณสวนและบ่อเลี้ยงปลาได้จากบริเวณต่าง ๆ ภายในวิลล่า

ตัววิลล่า จะมีทางเข้าทั้งหมด 2 ทาง ที่เชื่อมไปยังทางเดินซึ่งเป็นถนนด้านนอก รวมทั้งเชื่อมไปยังโรงรถด้วย จากห้องโถง ก็สามารถมองไปเห็นสวนหลังบ้านได้เช่นกัน เนื่องจากทางเชื่อมระหว่างห้องโถงและสวน เป็นทางเดินยาว เมื่อเปิดประตูทิ้งไว้จะสามารถมองเห็นพื้นที่บริเวณสวนได้
จะเห็นได้ว่า วัฒนธรรมตะวันออก อย่างการถอดรองเท้าและแขวนร่มก่อนเข้าบ้านก็เป็นพฤติกรรมที่พึงกระทำ ซึ่งปฏิบัติสืบทอดกันมานาน ดังนั้น จึงออกแบบให้วิลล่ามีม้านั่งพร้อมช่องสำหรับใส่รองเท้า และแขวนร่มอยู่ข้างใต้

ตัววิลล่าจะหันหน้าไปทางทิศใต้ ซึ่งเป็นทิศที่ร้อนที่สุดในช่วงกลางวัน และภายในบ้าน ก็มีการจัดวางให้บันไดอยู่ทางทิศใต้ ส่วนทิศที่เย็นที่สุดของบ้าน ซึ่งก็คือทิศตะวันออกเฉียงเหนือ จะมีห้องนั่งเล่น ห้องทานอาหาร รวมถึงห้องนอนแบบ Master Bedroom ตั้งอยู่ นอกจากนี้ เพื่อเป็นการหลีกเลี่ยงไม่ให้แสงแดดผ่านเข้าไปในบ้านโดยตรง จึงออกแบบหน้าต่างบานเกล็ดซึ่งทำจากไม้ติดไว้หลายส่วนของบ้าน โดยเฉพาะในส่วนฟาซาดด้านหน้า เพราะเชื่อว่าจะช่วยในเรื่องของการถ่ายเทอากาศ
ยิ่งไปกว่านั้น หลังคา 2 ชั้น ซึ่งทำจากแผ่นคอนกรีตและแอสฟัลต์ ไม่เพียงแต่ช่วยป้องกันการรั่วซึมจากฝน แต่ยังช่วยกันความร้อนจากภายนอกได้อีกด้วย เนื่องจากมีช่องว่างระหว่างหลังคาทั้ง 2 ชั้น ที่ทำหน้าที่เป็นฉนวนกันความร้อนได้อย่างดีเยี่ยม

เพดานสูงในส่วนของห้องนั่งเล่นภายในวิลล่า เป็นตัวช่วยให้อากาศถ่ายเท และทำให้ห้องดูโปร่ง เปิดโล่งไปถึงทางเดินชั้น 2 และยังสามารถเดินเชื่อมไปยังห้องทานอาหารได้สะดวก โดยมีประตูกระจกที่สามารถพับเก็บได้เป็นฉากกั้น แบ่งระหว่างห้องทั้ง 2 ห้อง แม้ว่าจะปิดประตูแล้ว ก็ยังเห็นการเชื่อมต่อระหว่างพื้นที่ทั้ง 2 ส่วน


Project Info
Architects: TOUCH Architect
Location: 40 Thanon Nawamin, Khwaeng Khlong Chan, Khet Bang Kapi, Krung Thep Maha Nakhon 10240, Thailand
Principal Architect: Setthakarn Yangderm, Parpis Leelaniramol
Contractor: OKCON Co., Ltd
Area: 100.0 m2
Project Year: 2017
Photographs: Chalermwat Wongchompoo
Manufacturers: Cotto d’Este, SCG
Source: archdaily
































