ลิฟท์ระบบสกรู คืออะไร? รู้จักเทคโนโลยีลิฟท์อนาคตจาก Cibes Lift
ลิฟท์ระบบสกรู (Screw-Driven Lift) คือเทคโนโลยีลิฟท์ที่ใช้สกรูเป็นกลไกขับเคลื่อน เหมาะกับบ้านและงานรีโนเวต เพราะติดตั้งง่ายเพราะไม่มีห้องเครื่อง ไม่ต้องทำบ่อลิฟท์

ลิฟท์ระบบสกรู กำลังได้รับความนิยมใน บ้านพักอาศัย อาคารขนาดเล็ก และโครงการรีโนเวต ที่ไม่สามารถติดตั้งลิฟท์แบบไฮดรอลิกหรือสลิงได้ง่าย หนึ่งในแบรนด์ที่ได้รับการยอมรับระดับโลกคือ ลิฟท์บ้านแบรนด์ Cibes Lift จากสวีเดน ซึ่งโดดเด่นด้าน ความปลอดภัย การประหยัดพื้นที่ และการติดตั้งที่ไม่ซับซ้อน บทความนี้จะพาคุณเข้าใจลิฟท์ระบบสกรู ตั้งแต่ หลักการทำงาน ไปจนถึง การเปรียบเทียบกับระบบลิฟท์อื่น ๆ

Table of Contents
ระบบลิฟท์ในปัจจุบัน ภายในประเทศไทย
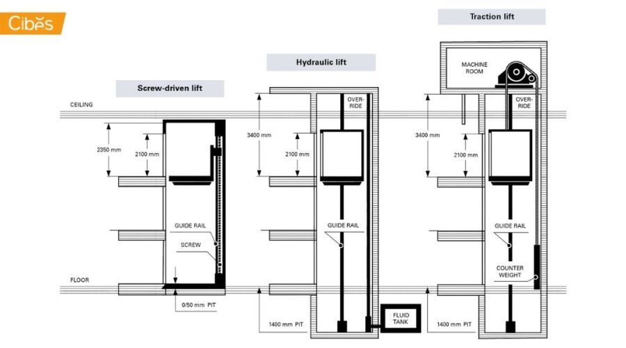
1.ลิฟท์ระบบสลิง (Traction Driven System)
ลิฟท์ระบบสลิง (Traction Driven System) หรือ ลิฟท์สายเคเบิล + มอเตอร์ เป็นลิฟท์ที่ใช้กันมากที่สุดในโลก โดยมี มอเตอร์หมุนรอก (Sheave) เพื่อดึงสายเคเบิลที่เชื่อมต่อระหว่าง Cabin และ Counterweight ทำให้ลิฟท์สามารถเคลื่อนที่ขึ้นลงได้อย่างสมดุล ลิฟท์ประเภทนี้มีทั้งแบบที่ต้องมี ห้องเครื่อง (Machine Room) และแบบ ลิฟท์แบบไม่มีห้องเครื่อง (MRL) ผู้ออกแบบอาคารสามารถเลือกได้ตามพื้นที่และงบประมาณที่มี
ลิฟท์ระบบสลิง (Traction Driven System) เหมาะกับ อาคารสูง คอนโด โรงแรม ห้างสรรพสินค้า หรืออาคารที่มีผู้ใช้งานจำนวนมาก และมีความสูงมากกว่า 20 เมตร และยังรองรับระบบควบคุมอัจฉริยะ (AI Dispatch) ที่ช่วยจัดลำดับการเรียกลิฟท์ได้อย่างมีประสิทธิภาพ จุดเด่นของลิฟท์ประเภทนี้คือ รองรับความเร็วสูง ประหยัดพลังงาน และมีมาตรฐานความปลอดภัยที่ใช้ทั่วโลก แต่ก็มีข้อควรรู้คือ ต้องมีโครงสร้างปล่องลิฟท์ที่แข็งแรง ค่าบำรุงรักษาสูง และ ไม่เหมาะกับบ้านขนาดเล็กหรืออาคารเตี้ย มากนัก
2.ลิฟท์ระบบไฮดรอลิก (Hydraulic Driven System)
ลิฟท์ระบบไฮดรอลิก (Hydraulic Driven System) ถูกออกแบบให้ใช้ แรงดันน้ำมันไฮดรอลิก ในการดัน กระบอกสูบ (Cylinder) เพื่อยกลิฟท์ขึ้น เมื่อจะลงลิฟท์ ระบบจะลดแรงดันน้ำมันลง ทำให้ Cabin เคลื่อนลงอย่างนุ่มนวล ลิฟท์ประเภทนี้ ไม่จำเป็นต้องมีห้องเครื่องด้านบน และสามารถติดตั้งได้ง่าย จึงเหมาะกับ อาคาร 2–5 ชั้น, โชว์รูมรถยนต์, คลังสินค้า หรือโรงงานที่ต้องขนย้ายสินค้าขนาดใหญ่

จุดเด่นของลิฟท์ไฮดรอลิก คือ รับน้ำหนักได้ดี โครงสร้างไม่ซับซ้อน และมีต้นทุนที่เหมาะสม แต่อาจมีข้อจำกัด เช่น ต้องเตรียมพื้นที่สำหรับวางถังน้ำมัน เสี่ยงต่อการรั่วซึม กินไฟมากในช่วงที่ลิฟท์เคลื่อนขึ้น และโดยทั่วไป ไม่เหมาะกับบ้านพักอาศัย เนื่องจากต้องมีการดูแลรักษาระบบของเหลวอยู่เสมอ
3.ลิฟท์ระบบสกรู (Screw & Nut Driven System)
ลิฟท์ระบบสกรูถือเป็น ลิฟท์บ้านที่ได้รับความนิยมสูงในยุโรปและเอเชีย เพราะไม่ต้องมีห้องเครื่อง ไม่ต้องมีบ่อลิฟท์ และใช้ไฟบ้าน 220 โวลต์ได้ทันที ภายในปล่องลิฟท์จะมี แกนสกรูแนวตั้ง และ Nut Drive Unit ที่เชื่อมกับมอเตอร์ เมื่อมีการสั่งงาน มอเตอร์จะหมุนแกนสกรูเพื่อให้ Cabin เคลื่อนที่ขึ้นลงตามเกลียวอย่างปลอดภัย
ระบบลิฟท์สกรูเหมาะกับ บ้านพักอาศัย อาคารที่รีโนเวต บ้านผู้สูงอายุ ร้านค้า หรือสำนักงานขนาดเล็ก เพราะสามารถติดตั้งได้แม้ตัวอาคารสร้างเสร็จแล้ว จุดเด่นหลักคือ ไม่ต้องมีบ่อลิฟท์ ไม่ต้องมีห้องเครื่อง ใช้ไฟบ้านได้ทันที ดีไซน์ทันสมัย และรองรับการใช้งานของผู้สูงอายุหรือผู้ที่ใช้ Wheelchair ได้อย่างเหมาะสม จุดจำกัดของลิฟท์ประเภทนี้คือ ความเร็วไม่สูงมาก และ ไม่เหมาะกับอาคารที่มีมากกว่า 7 ชั้น
Cibes Lift จากสวีเดน คือแบรนด์ชั้นนำในระบบลิฟท์สกรู มีโครงสร้างปล่องลิฟท์สำเร็จรูป ได้มาตรฐานยุโรป EN81-41 และสามารถติดตั้งได้รวดเร็วโดยไม่ต้องทุบปรับโครงสร้างอาคารเดิม
4.ระบบลิฟท์สูญญากาศ (Vacuum driven systems)
ลิฟท์สุญญากาศเป็นลิฟท์เชิงนวัตกรรมที่ไม่ใช้สายเคเบิลหรือกระบอกสูบ แต่ใช้ แรงดันอากาศ ในการควบคุมการขึ้นลงของ Cabin โดย Cabin จะอยู่ใน ท่อทรงกระบอกโปร่งใส ระบบจะใช้แรงดันอากาศดึง Cabin ขึ้น และปล่อยให้อากาศไหลออกเมื่อลง จึงให้ความรู้สึกเหมือน “ลิฟท์ลอยตัว” อย่างนุ่มนวล
ลิฟท์ระบบนี้เหมาะกับ บ้านดีไซน์ล้ำสมัย วิลล่า บ้านพักตากอากาศ หรือโครงการที่ต้องการแสดงเทคโนโลยี จุดเด่นคือ ดีไซน์หรู สามารถมองเห็นวิวภายนอก ใช้พื้นที่น้อย และติดตั้งรวดเร็ว อย่างไรก็ตาม ราคาค่อนข้างสูง มีเสียงรบกวนจากระบบอัดอากาศ และไม่เหมาะกับอาคารที่มีการใช้งานหนัก หรือมีผู้ใช้งานจำนวนมาก
ลิฟท์ระบบสกรู คืออะไร?
ลิฟท์ระบบสกรู (Screw-Driven Lift) คือ ลิฟท์แนวตั้งที่ขับเคลื่อนด้วยระบบสกรูหมุน โดยใช้ มอเตอร์ไฟฟ้า หมุนแกนสกรูในแนวดิ่ง ซึ่งจะทำให้ตัวกระเช้าลิฟท์เคลื่อนไปตามเกลียวสกรูขึ้นลงอย่างนุ่มนวล ระบบนี้เป็นเทคโนโลยีที่นิยมมากในยุโรปสแกนดิเนเวีย และเริ่มได้รับความนิยมสูงในเอเชีย รวมถึงประเทศไทย เนื่องจาก ไม่ต้องมีบ่อลิฟท์ ไม่ต้องสร้างห้องเครื่อง ไม่ต้องติดตั้งอุปกรณ์ซับซ้อน เหมือนลิฟท์ทั่วไป

โครงสร้างพื้นฐานของลิฟท์ระบบสกรู
เพื่อเข้าใจ ลิฟท์ระบบสกรู อย่างมืออาชีพ จำเป็นต้องรู้ โครงสร้างหลัก ดังนี้
- สกรูแนวดิ่ง (Vertical Screw Shaft) หัวใจหลักของลิฟท์ระบบสกรู ทำหน้าที่เป็นแนวทางให้ตัวกระเช้าลิฟท์เคลื่อนที่ขึ้นลง
- Nut / Drive Unit เป็นตัวจับกับเกลียวสกรู เมื่อมอเตอร์หมุน สกรูจะดันตัว Nut ให้เคลื่อนที่ขึ้นหรือลง
- มอเตอร์ไฟฟ้า ใช้ไฟบ้านทั่วไป ทำงานร่วมกับระบบควบคุมความเร็ว (Soft Start / Soft Stop)
- ระบบเบรกนิรภัย หากไฟดับหรือเกิดเหตุผิดปกติ ลิฟท์ระบบสกรูจะหยุดนิ่งทันทีโดยอัตโนมัติ
- โครงสร้างปล่องลิฟท์ และกระจกนิรภัย แบรนด์ Cibes Lift มาพร้อมปล่องสำเร็จรูป ทำให้ไม่ต้องเตรียมพื้นที่เพื่อสร้างปล่องปูน อีกข้อดีหนึ่งคือสามารถติดลิฟท์ตรงกลางบันได หรือมุมบ้านได้เลย
รวมลิฟท์ระบบสกรูรุ่นใหม่ล่าสุดในปี 2026

Cibes Air2 (New Generation 2026)
Cibes Air2 ไม่ได้ถูกออกแบบมาให้เป็นเพียงเครื่องอำนวยความสะดวกในการขึ้น-ลงเท่านั้น แต่ถูกยกระดับให้กลายเป็น “งานออกแบบแสงภายในบ้าน” อย่างแท้จริง แนวคิดนี้สะท้อนชัดตั้งแต่หน้าแรกของไฟล์ที่ใช้ชื่อว่า CIBES AIR 2 – PALACE OF LIGHTS ซึ่งสื่อถึงการให้ความสำคัญกับแสงสว่างในทุกมิติของการออกแบบลิฟท์รุ่นนี้
- ในเอกสารมีการระบุระบบไฟที่ออกแบบมาเฉพาะ ได้แก่ Recessed Ceiling Lights, Hidden GuidRail Lights และ Safety Edge Lights
- มาพร้อม Smart Display แบบใหม่ถึง 7 รูปแบบ ช่วยเพิ่มประสบการณ์การใช้งานและภาพลักษณ์ที่ทันสมัย
- แม้จะยังใช้เทคโนโลยีขับเคลื่อนแบบ ระบบสกรู (Screw Drive System) เช่นเดียวกับรุ่นก่อนหน้า แต่ Air2 มีการพัฒนาด้านดีไซน์อย่างชัดเจน
- ดีไซน์กระจกถูกปรับให้เป็น กระจกโปร่งเต็มบานแบบ Frameless ความกว้าง 1000 มม.
- ใช้เสาแบบ Invisible Profile ที่ดูสะอาดตา ลดการมองเห็นโครงสร้าง ทำให้ลิฟท์ดูโปร่งและเบา
- เหมาะกับบ้านหลายสไตล์ เช่น Scandinavian, Minimal หรือแม้แต่ Modern Luxury
- ตอบโจทย์ บ้านของผู้สูงอายุ ที่ต้องการใช้งานจริง โดยไม่เสียพื้นที่ใช้สอยภายในบ้าน และไม่กระทบภาพรวมของการออกแบบภายใน
ถ้าสนใจติดลิฟท์ทาง BuilderNews แนะนำบทความที่จะช่วยให้คุณพร้อมกับการติดตั้งลิฟท์ด้านล่างนี้เลย
- ติดลิฟท์บ้านต้องใช้พื้นที่เท่าไหร่ มีระบบอะไรบ้างและควรติดตั้งตรงไหนดี
- สิ่งที่ควรรู้ก่อนติดลิฟท์ พร้อมการเตรียมหน้างานเพื่อติดตั้งลิฟท์บ้าน
- 7 เทรนด์และไอเดียแต่งบ้าน ด้วยลิฟท์บ้านจาก Cibes Lift
- 3 ตำแหน่งยอดนิยมในการติดตั้งลิฟท์บ้าน
Kithara Lift
Kithara ถูกพัฒนาขึ้นเพื่อกลุ่มเจ้าของบ้านที่ต้องการลิฟท์แบบ Smart Home ระดับ Luxury โดยในรุ่นนี้มีทั้ง Art Panel ที่สามารถเปลี่ยนได้ตามธีมของบ้าน ระบบแสงแบบ Ambient และฟังก์ชันควบคุมผ่านระบบอัจฉริยะ เช่น Touchscreen และ Face Recognition จึงเหมาะกับบ้านสมัยใหม่ที่ต้องการทั้งความหรูหรา ความปลอดภัย และเทคโนโลยีที่สามารถรองรับการใช้งานในอนาคต เช่น ระบบ Automation หรือการเชื่อมต่อ IoT ลิฟท์รุ่นนี้จึงไม่ใช่เพียงเครื่องอำนวยความสะดวก แต่เป็นส่วนหนึ่งของการออกแบบสถาปัตยกรรมภายในบ้านอย่างแท้จริง
Kithara ถูกพัฒนาขึ้นเพื่อตอบโจทย์กลุ่มเจ้าของบ้านที่ต้องการลิฟท์แบบ Smart Home ระดับ Luxury โดยผสานความหรูหรา ความปลอดภัย และเทคโนโลยีอัจฉริยะเข้าไว้ด้วยกัน เพื่อรองรับไลฟ์สไตล์ของบ้านสมัยใหม่ในระยะยาว
- มาพร้อม Art Panel ที่สามารถเปลี่ยนได้ตามธีมของบ้าน ช่วยให้ลิฟท์กลายเป็นส่วนหนึ่งของงานออกแบบภายใน
- ใช้ระบบแสงแบบ Ambient Lighting เพิ่มบรรยากาศและความรู้สึกหรูหราในการใช้งาน
- รองรับฟังก์ชันควบคุมผ่านระบบอัจฉริยะ เช่น Touchscreen Control และ Face Recognition
- เน้นทั้ง ความปลอดภัย เทคโนโลยี และความสะดวกสบาย ในการใช้งานจริง
- รองรับการใช้งานในอนาคต เช่น ระบบ Automation และการเชื่อมต่อกับ IoT ภายในบ้าน
- ลิฟท์รุ่นนี้จึงไม่ใช่เพียงเครื่องอำนวยความสะดวก แต่เป็น องค์ประกอบหนึ่งของงานสถาปัตยกรรมและการออกแบบภายในบ้าน อย่างแท้จริง
KALEA X80
ถือเป็นตัวเลือกที่น่าสนใจอย่างมาก โดยเว็บไซต์อย่างเป็นทางการของ KALEA ระบุว่า X80 ถูกออกแบบมาเพื่อตอบโจทย์บ้านที่ต้องการลิฟท์ซึ่งใช้งานได้จริง พร้อมให้ความรู้สึกโปร่ง สบายตา และกลมกลืนกับพื้นที่อยู่อาศัย
- X80 มาพร้อมปล่องลิฟท์แบบ Full Glass Panorama รอบด้าน ช่วยเพิ่มความโปร่งและมุมมองที่เปิดโล่ง
- สามารถติดตั้งได้ทั้ง ภายในและภายนอกอาคาร เพิ่มความยืดหยุ่นในการออกแบบและวางตำแหน่งลิฟท์
- ใช้ระบบ EcoSilent 2.0 ที่ช่วยลดเสียงระหว่างการใช้งาน ทำให้เหมาะกับบ้านที่ต้องการความเงียบ
- ออกแบบให้ ใช้พลังงานอย่างมีประสิทธิภาพ รองรับการใช้งานในชีวิตประจำวัน
- ได้รับความนิยมในบ้านประเภท เช่น บ้านรีโนเวต, Townhome, Duplex และ Home Office
ANTERA Z90
ANTERA Z90 เป็นรุ่นที่มาพร้อมความ “หรูหรา” มากที่สุด โดยจากข้อมูลในเว็บไซต์ Z90 ได้รับการออกแบบให้เป็น Cabin Home Lift เต็มรูปแบบ และสามารถเลือกวัสดุภายในได้เอง เช่น วัสดุกระจกแบบ 360 องศา ไม้ หนัง และไฟภายในห้องโดยสารที่ออกแบบอย่างพิถีพิถัน ลิฟท์รุ่นนี้จึงเหมาะกับบ้านวิลล่า Boutique Hotel Gallery หรือบ้านที่ต้องการให้ลิฟท์กลายเป็น “จุดเด่นทางสถาปัตยกรรม” มากกว่าจะเป็นเพียงอุปกรณ์ขนส่งภายในอาคาร
- Z90 ถูกออกแบบให้เป็น Cabin Home Lift อย่างแท้จริง ไม่ใช่เพียงแพลตฟอร์มลิฟท์
- เจ้าของบ้านสามารถ เลือกวัสดุภายในได้เอง ตามคอนเซ็ปต์ของโครงการ
- วัสดุที่หลากหลายเพื่อให้เลือกเพื่อออกแบบตกแต่งภายในลิฟท์ เช่น ปล่องกระจกแบบ 360 องศา, พื้นไม้ และระบบไฟภายในห้องโดยสารที่ออกแบบอย่างพิถีพิถัน
- เน้นประสบการณ์การใช้งานที่ให้ความรู้สึก หรูหรา มีมิติ และแตกต่าง
- เหมาะกับอาคารและที่อยู่อาศัยประเภท เช่น บ้านวิลล่า, Boutique Hotel หรือพวก Gallery ต่าง ๆ
- ตอบโจทย์บ้านที่ต้องการให้ลิฟท์กลายเป็น “จุดเด่นทางสถาปัตยกรรม” มากกว่าจะเป็นเพียงอุปกรณ์ขนส่งภายในอาคาร
Ascenda Minivator Size XL
Ascenda Minivator XL ออกแบบมาเพื่อการใช้งานจริง รองรับวีลแชร์ ติดตั้งง่าย ใช้ไฟบ้านทั่วไป และเหมาะกับบ้านที่ไม่ต้องการปรับโครงสร้างมาก
Key Points (สรุปย่อ)
- รองรับ ผู้ใช้วีลแชร์ และผู้โดยสาร 3–4 คน
- ใช้ ไฟบ้าน 220V ไม่ต้องใช้ไฟ 3 เฟส
- ไม่ต้องขุดบ่อลิฟท์ ติดตั้งได้แม้บ้านสร้างเสร็จแล้ว
- ใช้เวลาติดตั้งเฉลี่ยเพียง 5–7 วัน
- เหมาะกับ บ้านสองชั้น, ผู้สูงอายุ, Home Care Clinic และงานรีโนเวต
คำถามที่พบบ่อยเกี่ยวกับลิฟท์ระบบสกรู
1. ลิฟท์ระบบสกรูคืออะไร
ลิฟท์ระบบสกรู (Screw-Driven Lift) คือ ลิฟท์ระบบขับเคลื่อนแนวตั้งโดยใช้มอเตอร์หมุนแกนสกรูแนวดิ่ง เพื่อให้ลิฟท์สามารถเคลื่อนตามเกลียวขึ้นหรือลงได้อย่างนุ่มนวล ไม่ต้องมีบ่อลิฟท์ ไม่ต้องมีห้องเครื่อง และสามารถใช้ไฟบ้าน 220V ได้เลยโดยไม่ต้องทำระบบไฟฟ้าเพิ่ม
2. ลิฟท์ระบบสกรูเหมาะกับอาคารประเภทไหน
เหมาะกับบ้านพักอาศัย อาคารรีโนเวต ทาวน์โฮม Townhouse Duplex อาคารสำนักงานขนาดเล็ก คลินิก และร้านค้าที่ต้องการลิฟท์ใช้งานจริงโดยไม่ต้องทุบพื้นหรือลงฐานรากใหม่
3. ลิฟท์ระบบสกรูปลอดภัยหรือไม่
ปลอดภัยสูง เพราะมี ระบบ Safety Brake, Soft Start & Soft Stop และ Emergency Auto-Lock หากไฟดับ ลิฟท์จะหยุดทันทีโดยไม่ตกลงมา และสามารถเชื่อมต่อระบบสำรองไฟได้
4. ลิฟท์ระบบสกรูใช้ไฟแบบไหน
ใช้ไฟบ้าน Single Phase 220V ไม่จำเป็นต้องใช้ไฟ 3 เฟสเหมือนลิฟท์ในอาคารพาณิชย์ทั่วไป
5. ติดลิฟท์ต้องใช้พื้นที่เท่าไหร่ในการติดตั้ง
ขึ้นอยู่กับรุ่น เช่น Cibes Air2 ต้องการพื้นที่เพียงประมาณ 1.3 x 1.3 เมตร หรือ Ascenda Minivator Size XL ต้องการพื้นที่ประมาณ 1.5 x 1.5 เมตร ซึ่งโดยทั่วไปสามารถติดตั้งใน “โถงบันได” หรือ “ตัดช่องพื้นเล็กน้อย” ได้เลย
6. ลิฟท์ใหม่ล่าสุดปี 2026 มีรุ่นไหนบ้าง
5 รุ่นลิฟท์ที่น่าจับตามากที่สุดในไทย คือ
| รุ่น | จุดเด่น |
| Cibes Air2 | เทคโนโลยีแสงสว่าง & Smart Display |
| Kithara Lift | Smart Home + Luxury Design |
| KALEA X80 | Full Glass Panorama & EcoSilent |
| ANTERA Z90 | Cabin แบบสถาปัตยกรรม |
| Ascenda XL | ติดตั้งง่าย ใช้ไฟบ้าน รองรับ Wheelchair |
7. ติดตั้งลิฟท์ระบบสกรูใช้เวลานานไหม?
รุ่นมาตรฐานใช้เวลาเพียง 5–10 วัน ในขณะที่ลิฟท์เชิงพาณิชย์ทั่วไปอาจใช้เวลามากกว่า 60–90 วัน
8. ลิฟท์ระบบสกรูราคาเท่าไหร่?
ราคาเริ่มต้นของลิฟท์ระบบสกรู ที่ประมาณ 1.2–3 ล้านบาท ขึ้นอยู่กับขนาด จำนวนชั้น วัสดุ และฟังก์ชันเพิ่มเติม เช่น Smart Home หรือ Art Panel สำหรับ Ascenda Minivator ขนาด XL
9. ถ้ามีผู้สูงอายุในบ้าน ควรเลือกรุ่นไหน?
แนะนำรุ่นที่รองรับ Wheelchair เช่น Cibes Air2, KALEA X80 หรือ Ascenda Minivator ขนาด XL
เพราะสามารถเข้า-ออกลิฟท์ได้สะดวก มีขนาดพื้นที่เพียงพอสำหรับ วีลแชร์ และผู้สูงอายุ และมีระบบความปลอดภัย ตามมาตรฐานยุโรป EN81-41
10. ต้องขออนุญาตก่อสร้างหรือยื่นแบบกับวิศวกรไหม?
บางแบรนด์ เช่น Cibes Lift จะมี โครงสร้างปล่องลิฟท์สำเร็จรูป ที่มีใบรับรอง CE + EN81-41 สามารถใช้ยื่นก่อสร้างหรือนำไปใช้กับประกันอาคารได้โดยไม่ยุ่งยาก
ลิฟท์ระบบสกรู (Screw-Driven Lift) คือคำตอบของการอยู่อาศัยยุคใหม่ ด้วยการติดตั้งที่ง่าย ไม่ต้องมีห้องเครื่อง ไม่ต้องทำบ่อลิฟท์ และใช้ไฟบ้าน 220 โวลต์ เหมาะกับบ้านพักอาศัย งานรีโนเวต และโครงการสำหรับผู้สูงอายุ โดยไม่กระทบโครงสร้างเดิม อีกทั้งยังไม่ใช่แค่เครื่องอำนวยความสะดวก แต่เป็นส่วนหนึ่งของการออกแบบบ้าน ช่วยเพิ่มความปลอดภัย และเพิ่มมูลค่าบ้านได้จริงในระยะยาว
พร้อมติดตั้งลิฟท์ในบ้านของคุณหรือยัง
ส่งแปลนบ้านของคุณให้ทีม Cibes ได้เลย แล้วรับคำแนะนำจากผู้เชี่ยวชาญ ที่จะช่วยให้ลิฟท์ของคุณถูกออกแบบและวางในตำแหน่งที่ถูกต้องให้เหมือนเป็นส่วนหนึ่งของบ้านตั้งแต่แรก เรียนเชิญเจ้าของบ้านทุกท่านมาทดลองขึ้น-ลงลิฟท์ได้ที่โชว์รูมด้านล่าง
Showroom ลิฟท์ที่กรุงเทพฯ
2113, 1 ถนนเพชรบุรีตัดใหม่ แขวงบางกะปิ เขตห้วยขวาง จังหวัดกรุงเทพมหานคร 10310
Showroom ลิฟท์ที่เชียงใหม่
123/6 หมู่ 15 ถนนชลประทาน ตำบลสุเทพ อำเภอเมืองเชียงใหม่ จังหวัดเชียงใหม่ 50200
Showroom ลิฟท์ที่ภูเก็ต
20/82 (Park plaza D) หมู่ 2 ถนนเทพกระษัตรี ตำบลเกาะแก้ว อำเภอเมือง จังหวัดภูเก็ต 83000
โทร: 02-114-6499
Line: @cibes
Website: https://www.cibeslift.co.th/




































